Dự án Đông Bình Dương 2022 là một dự án nổi bật hơn so với những dự án khác cùng phân khúc. Nó là điểm đến hấp dẫn của nhiều nhà đầu tư thông minh. Dự án có tiềm năng sinh lời cao nhờ vào vị trí thuận lợi, tiện ích hấp dẫn cùng sự chỉn chu và để tâm của nhà đầu tư.

Giới thiệu tổng quan về dự án Đông Bình Dương 2022
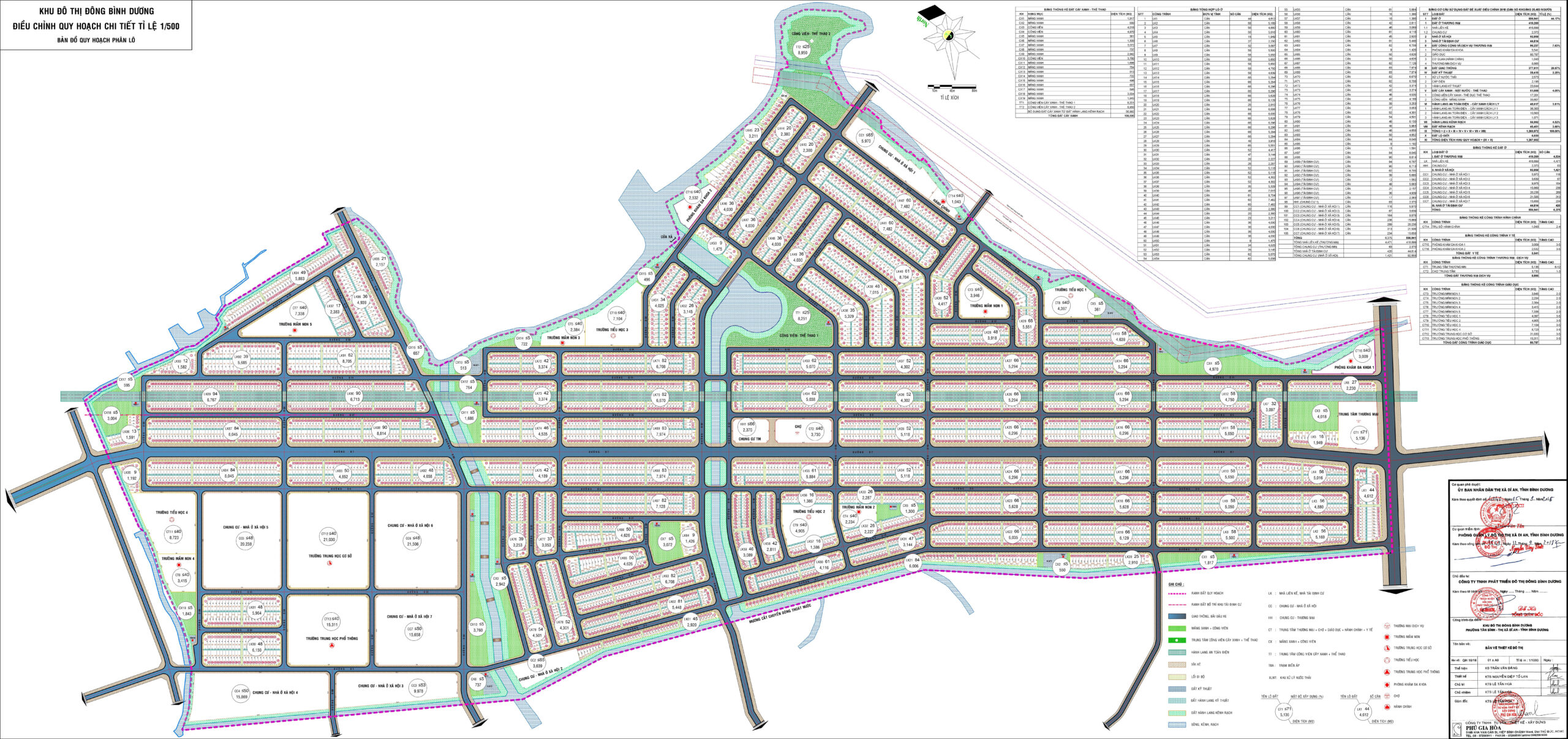
Dự án khu đô thị Đông Bình Dương có quy mô 126,7 ha, cung cứng đến 6.433 nền với diện tích dao động từ 60 đến 135 m2. Có thể nói, đây là dự án đắt giá tại Bình Dương trong thời điểm hiện tại. Chúng được nhiều người dân cũng như giới đầu tư săn đón và lựa chọn, nơi đây hứa hẹn sẽ vô cùng sôi động trong tương lai.
Dưới đây là những thông tin cơ bản của dự án:
- Tên: Khu dân cư Thương Mại Dịch Vụ Đông Bình Dương
- Địa chỉ: Nguyễn Thị Minh Khai, Tân Bình, Dĩ An, Bình Dương
- Tổng diện tích: 126,7 ha
- Diện tích/nền: 60m2 – 135m2
- Quy mô 6.433 nền, chia thành 3 giai đoạn triển khai
- Hạ tầng: đang trong tiến trình hoàn thiện, đường nội bộ: 13m-30m
- Xây dựng theo chuẩn khu đô thị kiểu mẫu
- Pháp lý dự án đông Bình Dương: Sổ hồng riêng, có thể thanh toán linh hoạt thành nhiều đợt, không thêm lãi suất.
Để các bạn có thể nắm được thông tin mới nhất về dự án Đông Bình Dương một cách tường tận, chúng ta sẽ phân tích từng khía cạnh ở bên dưới. Từ đó giúp bạn có được cái nhìn tổng quan và hiểu rõ hơn vì sao dự án lại được yêu thích và lựa chọn nhiều đến vậy.
Bản đồ quy hoạch dự án Đông Bình Dương
Được UBND tỉnh Bình Dương chấp thuận chủ trương Quy hoạch khu dân cư Thương mại dịch vụ đông Bình Dương. Căn cứ công văn số 70/UBND-KTN Ngày 10 tháng 1 năm 2018 của UBND tỉnh Bình Dương Thị xã Dĩ An đã chính thức kỳ quyết định số 4046/QD-UBND duyệt đồ án điều chỉnh quy hoạch chi tiết tỷ lệ 1/500 khu đô thị Đông Bình Dương khu đất thuộc phường Tân Bình thị xã Dĩ An Bình Dương.

Chủ đầu tư – Công ty TNHH Phát triển đô thị Đông Bình Dương
Tên quốc tế: DONG BINH DUONG DEVELOPMENT CO.,LTD
Địa chỉ: Khu phố Tân Phú 2, Tân Phước, phường Tân Bình, Thành Phố Dĩ An, tỉnh Bình Dương.
Mã số thuế: 3700880115.
Người đại diện pháp luật: Đỗ Hà
Ngày hoạt động: 22/01/2008.
Giấy phép kinh doanh số: 3700880115.
Công ty Đông Bình Dương là đơn vị chủ đầu tư uy tín, tầm cỡ và là đơn vị hàng đầu với nhiều dự án lớn được hình thành. Mang đến lợi nhuận cho nhiều nhà đầu tư cũng như tạo điều kiện cho người dân an cư ổn định cuộc sống.
Lĩnh vực: Kinh doanh bất động sản quyền sử dụng đất thuộc chủ sở hữu, chủ sử dụng hoặc đi thuê

Vị trí địa lý đắc địa của dự án khu đô thị Đông Bình Dương
Dự án Đông Bình Dương tọa lạc tại mặt tiền đường Nguyễn Thị Minh Khai ở đoạn phường Tân Bình giao với phường Tân Hạnh. Khu vực này là đầu mối giao thông quan trọng của hai thành phố Dĩ An – Bình Dương và Biên Hòa – Đồng nai.
Đây là khu vực sầm uất nhất và tập trung rất đầy đủ tiện tích, thuận lợi trong việc kinh doanh mua bán, an cư lập nghiệp. Dự án Đông Bình Dương giáp đất dân và suối Năm Thuận ở phía tây nam và tây bắc. Phía đông bắc thì giáp rạch ông Tiếp, phía đông nam giáp rạch ông Tiếp và tuyến đường Nguyễn Thị Minh Khai.

Bên cạnh đó, dự án Đông Bình Dương cũng nằm gần những tuyến đường huyết mạch như Mỹ Phước – Tân Vạn, quốc lộ 1K, tỉnh lộ,… Còn về khu dân cư sinh thì dự án ở gần nhiều khu chợ như chợ Bình Trị, Chiêu Liêu, An Phú, Dĩ An… Dự án Đông Bình Dương cũng gần các khu công nghiệp như VSIP, Tân Đông Hiệp, Việt Hương…
Nói tóm lại thì vị trí địa lý của dự án Đông Bình Dương là một lợi thế lớn. Chỉ cách khoảng 15 phút để di chuyển từ dự án đến các khu dân cư thành phố lân cận. Hơn nữa, ở khu vực này, nhiều dự án cơ sở hạ tầng đang trong kế hoạch được thực hiện. Điều này là yếu tố để giá đất của dự án tăng mạnh đáng kể.
Tiện ích của dự án Đông Bình Dương
Về tiện ích, điểm nhấn của dự án khu đô thị Đông Bình Dương đó là địa hình sinh thái tự nhiên và bao quanh hồ. Môi trường sống thoáng mát và trong lành là những gì mà dân cư sẽ được tận hưởng. Hơn nữa, hiện nay khu vực này đã có một hệ sinh thái thương mại dịch vụ hiện đại đầy đủ.

Các nhu cầu thiết yếu của người dân đã được đảm bảo. Những tiện ích tiêu biểu đó là trường học, ngân hàng, khách sạn, nhà hàng, văn phòng, bưu điện, công viên, bệnh viện, khu vui chơi giải trí, phố thương mại, chợ, siêu thị,…
Mặt bằng thiết kế của dự án
Về mặt bằng thiết kế, tổng diện tích quy hoạch là 126,7ha, chỉ tiêu là 4 người/hộ, dự án bố trí khoảng từ 5.759 – 7.918 hộ. Cụ thể như sau:
- Nhà chung cư: 2.370m2, mật độ xây dựng 65,65%, 6 tầng, tổng 63 căn.
- Đất tái định cư: 44.814m2, từ 1 đến 3 tầng, tổng 420 căn.
- Đất nhà ở xã hội: 92.858m2, mật độ xây dựng 65%, 5 tầng, tổng 1.421 căn.
- Đất thương mại: 8.866m2.
- Đất giáo dục: 80.787m2, tổng 11 trường từ mầm non đến THPT.
- Đất y tế: 5.541m2, bao gồm 2 phòng khám đa khoa.
- Đất cây xanh: 51.008m2.
Nhìn chung dự án Đông Bình Dương năm 2022 có nhiều hạng mục sản phẩm khá đa dạng về diện tích và giá cả. Điều này tạo thuận lợi cho nhiều nhà đầu tư, họ có thể chọn được sản phẩm mà mình mong muốn.
Hình mới nhất dự án Đông Bình Dương năm 2022
Đến tháng 6 năm 2022 dự án Đông Bình Dương đã thi công hơn 90% khối lượng công việc. Hạ tầng gần như đã hoàn chỉnh, hệ thống điện, âm thanh máy nước. Đường bó vỉa và thảm nhựa, cây xanh bên hai đã được trồng, hệ thống chiếu sáng đèn đường cũng đã được thi công.
Đất dự án Đông Bình Dương năm 2022 cũng có đủ điều kiện để xây dựng nhà, hiện tại về mặt thủ tục, thì dự án đang chờ quyết định của Sở Xây dựng.

Dự án Đông Bình Dương 2022 có nên mua không?
Dự báo giá đất dự án Đông Bình Dương 2022 sẽ ra sao?
Nên đầu tư vào phân khúc nào để có hiệu quả? Cần cân nhắc điều gì khi đầu tư vào dự án Đông Bình Dương 2022?
Các nhà đầu tư cần chú ý đến các macro yếu tố và thời hạn dài.
Lãi suất đang ở mức thấp, nên làm việc chọn lọc đầu tư bđs vùng dù có giảm so với giai đoạn trước nhưng vẫn là tư duy kênh.
Các nhà đầu tư có thể xem xét, tìm kiếm cơ sở tư vấn tại các khu vực và thị trường mới có tiềm năng phát triển mà giá cả không tăng quá cao hoặc không tăng giá trong thời gian qua.
Cần nghiên cứu các yếu tố cấu thành về trường học, phục hồi khả năng và tăng giá trị cũng như pháp lý tố tố của dự án đang quan tâm đến đầu tư.
Dự án Đông Bình Dương bao giờ hoàn thành?
Dự án khu đô thị Đông Bình Dương bao giờ hoàn thành ? – đó là câu hỏi nhức nhói mà biết bao nhiêu dân cũng như các nhà đầu tư dự án Đông Bình Dương quan tâm đặt ra thời điểm này.
Thông tin từ chủ đầu tư dự án cho biết rằng: hiện tại pháp lý của dự án Đông Bình Dương 2022 đã gần hoàn thiện. Dự kiến trong tháng 9 năm 2022 sẽ cho dân vào nhà xây dựng để ổn định cuộc sống. Hạ tầng hạng mục đang dần hoàn thành gần 95% dự án.
Hiện nay, chủ đầu tư đang gấp rút hoàn thiện hồ sơ để dự án Đông Bình Dương 2022 đưa và sử dụng ” giao đất tái định cư và tiến hành cho dân xây nhà”.
